THE MUSEUM BUILDINGS & GROUNDS

The Rancho Camulos Museum is a 40 acre National Historic Landmark, situated within an 1,800 acre working ranch known as the Camulos Ranch Company. The ranch is bounded by low hills on the north, Piru Creek to the west, the Santa Clara River and the Oak Ridge Mountains to the south, and the Newhall Ranch on the east. The museum comprises 15 structures, the most significant of these are (in chronological order):

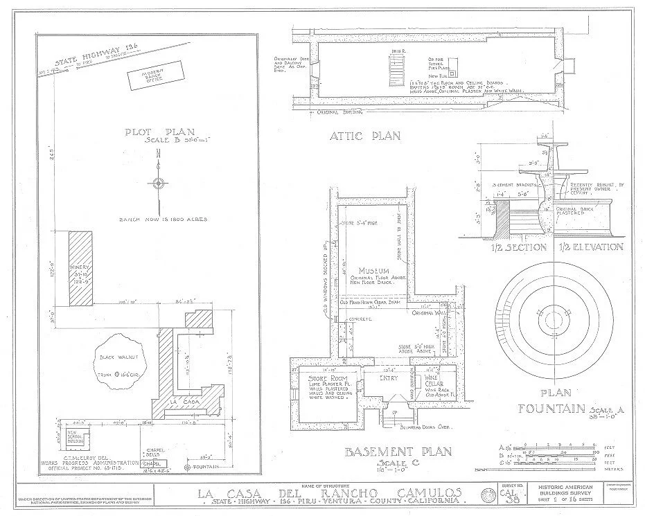
HABS (Historic American Buildings Survey) floorplan-sketch of the Main Adobe

THE MAIN ADOBE

The Ygnacio del Valle adobe was built in several phases, beginning in 1853 and reaching essentially its present plan by 1880. The first four rooms along the south veranda were built in 1853 (rooms 1-4 on floor plan). Between 1853 and 1862, three rooms were added adjacent to the original four rooms (rooms 5-7 on floor plan). Steps on the south veranda lead up to an elevated porch. A wine cellar was added beneath this portion of the adobe and accessed through double cellar doors below the porch. The porch is presently enclosed with screens that were added in the 1930s.

A freestanding cocina (kitchen building) was constructed at the northeastern corner of what was to become the placita (patio) area. During the 1870s, a west wing was added to the 1861-1862 additions of the building (rooms 8-10). An external corridor runs along this section of the adobe, providing garden access to each room and forming an L-shaped plan. By 1880 three final rooms were added (rooms 11-13). Sometime around 1915 a wooden breezeway was constructed to connect the northeastern end of the adobe (room 13) to the cocina, thus creating the present U-shaped plan.

Alterations made by the Rubel family include: removal of the interior wall between rooms 7 and 8 to create an expanded living room; the addition a large picture window; remodeling the original cocina into a garage and living quarters; screening in the corredor and elevated porch; and adding the brick pathways that surround the house today.

1925 Floor Plan by J LIPPINCOTT

1925 Floor Plan. Copyright J.B. Lippincott

THE FOUNTAIN

The fountain is constructed of bricks and at one time was clad with lime-plaster stucco. The precise date of the fountain is unknown, but it is depicted in plan upon a signed drawing dated 1853 in the del Valle family papers. The central element was originally made up of two tiered, shallow basins on a narrow central stem. The Rubel family modified this element circa 1934 by broadening the appearance of both basins and the central stem.

The fountain, October 2023, looking toward the Santa Susana mountains, photo courtesy of Barbara DeHart

THE CHAPEL

The chapel, consecrated as a Roman Catholic place of worship, was constructed circa 1867. It is a wood frame structure measuring fourteen feet in width by twenty feet in length, with a thirty-foot long porch extending from the entrance. The porch forms an “open chapel” when the large double entrance doors are opened, which enabled a larger congregation to participate in the sacrament of mass. In addition to weekly masses, the chapel was been used for wedding and christenings n the del Valle and Rubel families.

HABS sketch of the chapel

North side of the chapel, featuring the historic bells.

THE BELL STRUCTURE

Directly adjacent to the northwest of the chapel is the Bell Structure. Three bells hanging from a wooden freestanding frame have been a feature of Camulos since at least the 1870s. The largest of the three bells was cast by Russians in Kodiak, Alaska, was used to call worshipers to morning prayers or mass in the chapel. A second, smaller bell was also cast in Kodiak in 1796. This bell originally hung at the San Fernando Mission and may have been removed to Camulos by Antonio del Valle when he was administrator of the mission. A third, smaller bell was removed by a del Valle daughter and taken to her private chapel.

HABS Bell Structure

THE WINERY

The one and one-half story brick winery was built in 1867. The gabled roof is wood shingled and the building has two large openings at the north and south ends. The foundation is constructed of river rocks and lime masonry. A wood frame shed used to store farm equipment was added to the west side of the building at an unknown date, prior to 1924. Before the winery’s construction, wines were aged in casks in the cool wine cellar beneath the adobe.

Camulos was known for its fine brandies and wines primarily between the 1870s and early 1900s. When grapes were no longer grown for commercial purposes, the winery building was converted to use as storage. In later years, August Rubel converted the second floor of the winery to a museum housing deI Valle family artifacts

HABS sketch of the original winery

WINERY RANCHO CAMULOS

THE BARN, GAS STATION & BUNKHOUSE

The exact date of the barn is unknown, but the style and detailing, (brackets, rafters and trim) suggests a circa 1910 date. Crop planting records indicate that the 1909 to 1916 period is when the largest number of walnuts, apricots and orange trees were planted. These dates might coincide with the construction of the barn, gas and oil house and bunkhouse. The gas and oil house was probably built about the same time as the barn, circa 1910. The bunkhouse was built circa 1916 and is a Craftsman style bungalow with a wood-shingled exterior. The bunkrooms are now storage spaces and the workers’ dining area now serves as the office of the Camulos Ranch Company.

GAS STATION AND BARN, RANCHO CAMULOS

Bunkhouse, October 2023, photo courtesy of Lesley Roberts

THE SMALL ADOBE

The Nachito del Valle adobe was built by the youngest son of Ygnacio and Ysabel del Valle in 1920. It is a Spanish colonial revival-style house designed around a central courtyard and constructed of adobe clad with stucco. Badly damaged in the 1994 earthquake, grant funds for the seismic engineering and restoration helped to convert the building into the Rancho Camulos Visitor Center.

THE SCHOOL HOUSE

The Schoolhouse was built circa 1930 by August Rubel to serve the family’s five young children and those of the bookkeeper. (who at one time resided in the small adobe). It is a wood frame structure clad with stucco designed to blend in with the early adobe buildings.

OTHER FEATURES

In addition to the buildings and objects, a large number of mature trees and extensive gardens contribute to the historic character of the property. These landscape features help divide the working portion of the ranch from the residential sections. Surrounding the Ygnacio del Valle Adobe, schoolhouse, chapel and fountain, are well-manicured lawns, concrete and brick paths, flower gardens, and dozens of mature ornamental trees. At the southern end of the formal lawn is the family orchard where dozens of varieties of fruit trees are grown.

Additional features include an aviary, a partial reconstruction of the once 150 foot long grape arbor (covered in mission grapes), an herb garden, fishpond, and a barbecue area with brick oven. Compacted earth, mature California pepper trees and cork oak trees characterize the working area of the ranch headquarters north of the del Valle adobe. At the entrance to the ranch is a row of Eucalyptus trees, a long arbor with mature wisteria vines and a stone historical marker bearing a bronze plaque denoting the State Landmark status of Rancho Camulos.

Directly across from the ranch, north of Highway 126 and the railroad right-of-way, are two railroad-related residences and three farm labor cottages.

HABS sketch of the veranda of the Main Adobe

HABS sketch of the Veranda, Main Adobe

View looking west to the mountains, edge of Main Adobe

del Valle bedroom, Rancho Camulos Museum

Undated photo (probably about 1890 when several other photographs were shot at the ranch). Unattributed photographic print in the Natural History Museum of Los Angeles County's Seaver Center for Western History Research (Catalog No. GPF.0538), where it is identified only as "Camulos ranch, Del Valle's room (interior)."